【蜀道翰文府】
成都主城东中环区域内,涵盖七大城市副中心之一的八里庄中心,CCD中央文创商务休闲区,是成都优居生活最具代表性的区域之一。
街里巷弄的珍馐美味,繁华热闹的一线商圈,悠然静谧的公园……东中环已将文化、创意、商务、休闲等功能集于一体,这里既能沉浸在千年的烟火气里,也能感受接轨国际的城市界。
【蜀道翰文府】
【品牌——蜀道集团,万亿国企】
蜀道集团,是重组整合四川省交通投资集团有限责任公司和四川省铁路产业投资集团有限责任公司通过新设合并方式组建的省属国有企业
综合实力位列全国省级交通企业“第一方阵”
资产总额超10000亿元

世界500强
2022年8月3日,《财富》杂志发布2022年世界500强榜单,蜀道投资集团有限责任公司首次上榜,名列第413位,成为四川省属国有企业首家世界500强。
《财富》世界500强以企业年度销售收入作为主要依据进行排名,该榜单每年公布一次,是目前评估全球大型公司最具影响力、最权威、最知名的企业排行榜。此次跻身世界500强,标志着蜀道集团在建设国内领先、世界一流的综合交通服务型现代化企业道路上又迈出了坚实一步。
【项目区域——下个攀成钢区域——二八板块】
在成都三环内土地储备日渐稀缺之际,2017年,成都机车厂整体搬迁完成后,“主城区最后3000亩地”强势登场,使得二八板块的活跃状态瞬间爆表,成为主城置业的火热目标区域。2017年至今,保利、首钢、朗诗、万科、新希望等品牌房企陆续通过土拍、转让、合作等方式进驻二八板块,板块的土地价值呈现“一年更比一年高”的态势,且处于不断加速的通道中。

【配套——多重配套融集一身】
交通:三横三纵立体交通网络(三横:府青路、二仙桥北路、成华大道;三纵:三环、中环、二环),距离已通车地铁7号线(八里庄站)约800米左右,距离在建的地铁17号线(机车厂站)约700米左右,步行10分钟内两条线路即可抵达,真正成为全城通达的中枢地带。
商业:占地约145亩的合信K101,将成为主城最大的旅游商业综合体验中心,集体验式山水购物中心、红砖艺展中心、工业故事情景风格商业街、5A甲级写字楼、洲际英迪格五星级精品酒店、绿色生态写字楼等于一体,更有诸多各类商业广场和购物区,同时紫瑞府自带9.2万方的自持商业,完善片区整体商业配套。
教育:成都七中英才(K12)实现从小学到高中的一体化教学,距翰文府约100米,更有嘉祥外国语学校,成华实验小学、华西中学、成华蜀辉实验学校、成都四十九中、二仙桥学校、第十三幼儿园等,全龄教育为宜居家庭着眼未来。
医院:成都第一中医医院(在建)将成为区域内又一个大型国家三甲医院,而华西第二医院成华妇女儿童医院(在建)则将成为区域性妇幼专科医疗中心,与现在医疗机构,共同保障健康生活。
生态:除却知名的4A东郊记忆等工业文明外,四大公园(红仓·完美文创公园、二仙桥公园、机车公园、体育公园)、成都理工体育馆及成都自然博物馆等,其中二仙桥公园距项目约300米,项目自身大围合布局双中庭景观,铺展“双环·四星·八景”,形成内外双公园,为生态休闲提供更多选择。
【项目】
总户数:1304户
楼栋总数:13栋
梯户比:2T3 2T4
建筑面积:约20万平米
容积率:3.0
绿化率:45%
绿地率:35%
物业公司:四川铁投晟瑞翔物业管理有限公司
项目总占地69.9亩,英才社区,菁领府邸。
于臻稀城芯之上
以最低14%建筑密度、35%绿地率
缔造纯居低密大城,最宽楼间距达157米
【景观——超大楼间距,双中庭景观设计】
约等于3个足球场面积的双大中庭
形成“双环·四星·八景”的多元复合共融格局
营造艺术花园、阳光林谷、思考花园、儿童乐园、运动花园等主题场景
在呈现环保低碳社区、健康居家氛围的同时
使得四季四景四色皆可赏,美景随时享
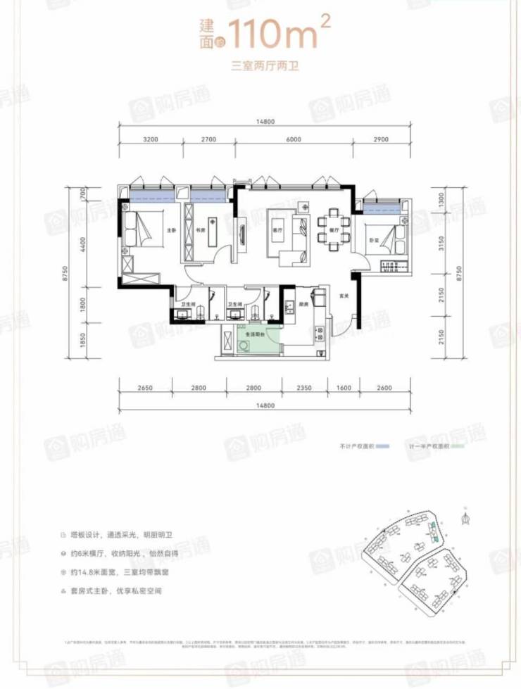
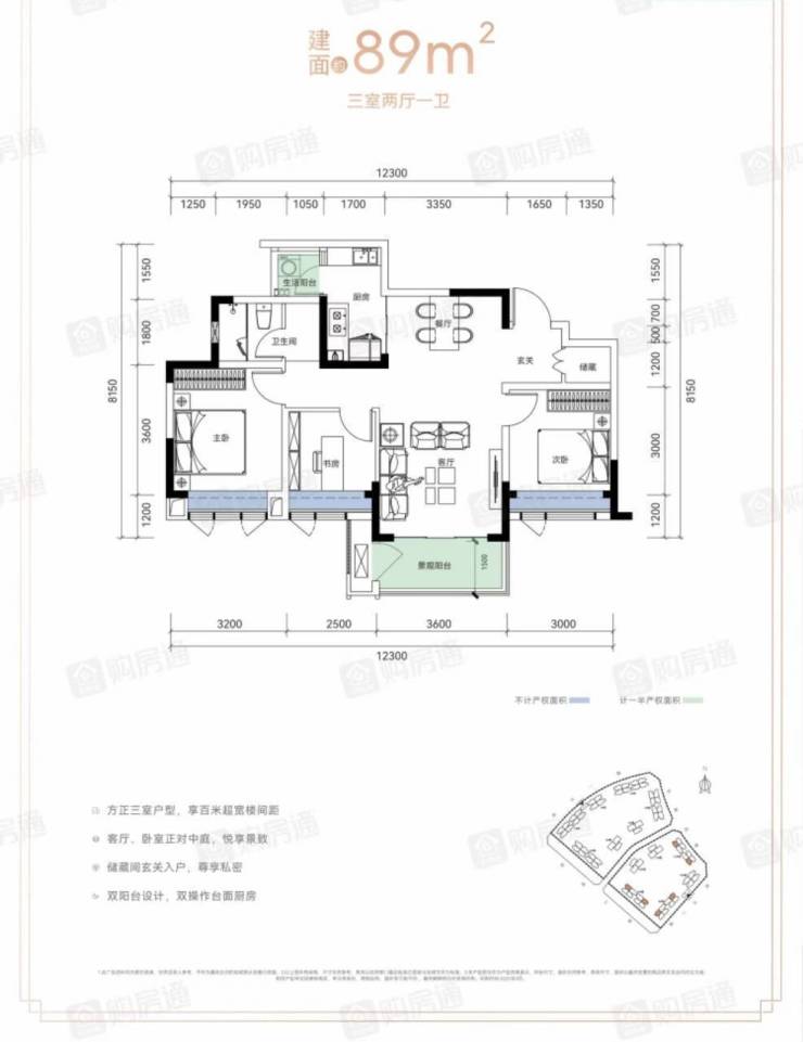
【户型】
88-130平
株洲中海国际社区项目将重...
银川市1宗近84亩商住用地吸...
临沂奥达学府壹号院预计7月...
银川市锦樾府项目规划公示...
广东东莞:无住房职工每月...
南京NO.2021G97地块销售价...
永登家宜万象新天地销售价...
青岛遵化路小区2023最新房...
贵阳云岩区金馬国际2室1厅8...
广安建材城项目一期全面建...
珠海品牌地产富力优派广场...
贵阳云岩区半边街51号1室1...
5月东莞环球经贸中心写字楼...
魔方公寓签约入驻北京昌平...
南京NO.溧水2021G20地块销...